6716 N Commercial Avenue
CLASSIC PIEDMONT BUNGALOW ROOTED IN COMMUNITY
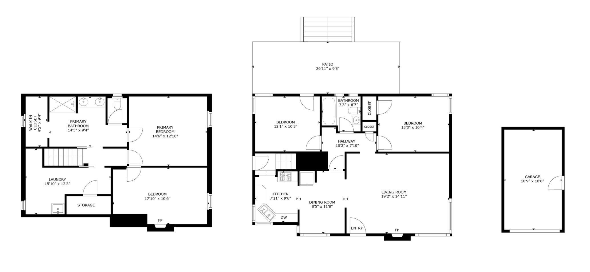
3 beds, 2 baths | 1,856 sq ft | $565,000
Tucked along a quiet, tree-lined street, this 1940's Piedmont home carries the quiet confidence of its era with a grounded profile and striking brick chimney. Over time, this home has been thoughtfully refined and adapted, creating a practical lifestyle. Hardwood floors and a wood-burning fireplace bring warmth to the main living spaces, where light moves easily throughout. Two bedrooms anchor the main level—one with its own exterior access for a wonderful flow outdoors. Downstairs offers room to spread out, with an additional living area, bedroom, full bath and laundry. Out back, a covered deck invites year-round use, overlooking a fenced yard ready for slow mornings and easy evenings. The detached garage, refreshed in 2020, offers another versatile space for work, creativity, or movement.
Just blocks from Peninsula Park and moments to Mississippi and Dekum, this Piedmont location blends neighborhood calm with a connected, community-driven energy. Excellent transit access, walkability, and bike-friendly streets.
MLS: 713299590

