2207 NE 20th Avenue
CHIC GRANDEUR IN HISTORIC IRVINGTON
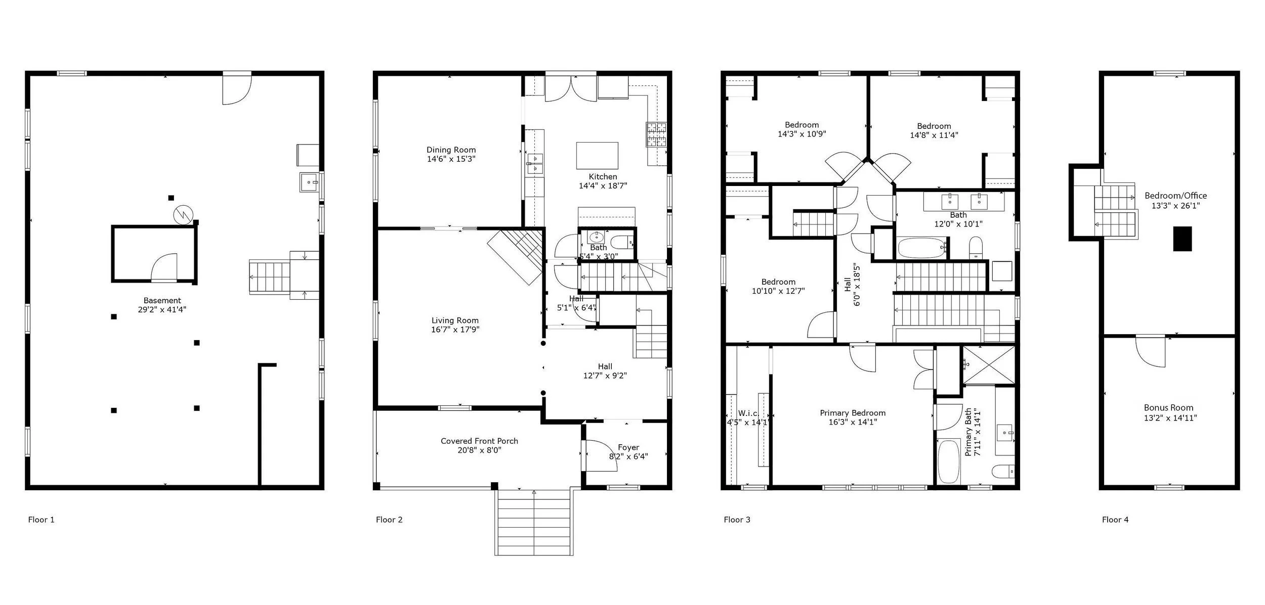
5 Beds + Bonus, 2.5 Baths / 4,304 Sq Ft / $1,079,900
Fresh meets formal in this big, broad-shouldered Irvington home! Sitting proud on a quiet tree-lined street, preserved period details meet large functional spaces across a rare floor plan. Experience a special home as you step inside the formal entry framed with wainscoting and top nail quarter-sawn white oak floors. Fun designer touches intermixed with craftsman details like coved ceilings and picture frame moulding continue across the main with a circular floor plan. Updated kitchen features Viking range, pass-through to large formal dining room, and french doors leading to the backyard. The side-by-side formal plus utilitarian staircases lead to a large second level with 4 well-appointed bedrooms, including primary ensuite with heated floors, soaking tub, walk-in closet, and original leaded glass windows. Continue up to the finished 3rd level with perfect flex space plus an additional office/bedroom with added skylights, windows, and a mini-split heat + cool system. Expansive unfinished basement with separate entrance is ideal for storage or potential to finish for additional living space. Enjoy the low-maintenance yard with artificial grass that’s ready for play year-round! Walking distance to local schools, 1 block from The Irvington Club, and abundant amenities in one of the Eastside’s most coveted neighborhoods.
MLS: 24026700

