2731 SW 2nd Avenue
URBAN LIVING IN HISTORIC LAIR HILL
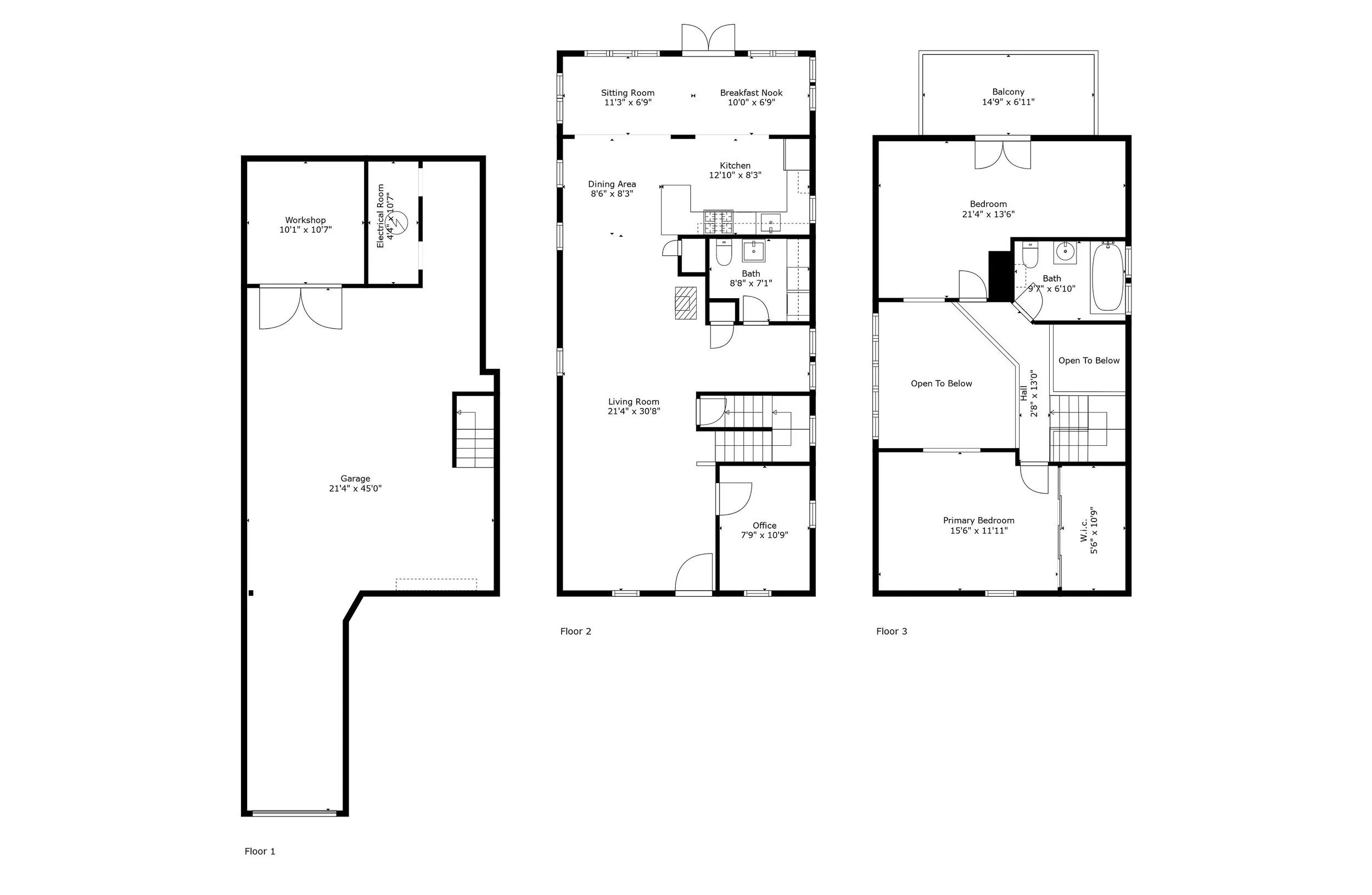
2 Beds + Office, 1.5 Baths / 2,647 Sq Ft / $674,900
This captivating Victorian residence seamlessly intertwines modern design with Scandinavian elements, creating a timeless masterpiece that effortlessly merges the past with the present. Upon stepping onto the inviting front porch, you are welcomed into a sanctuary exuding tranquility and sophistication. The soaring ceilings and exposed wood beams evoke a sense of grandeur, complemented by smooth gallery-like walls that provide an ideal backdrop for artistic expression. Natural light floods in through skylights and warm wood-framed windows, illuminating the beautiful fir floors that flow throughout the main level. A gas fireplace adds an intimate ambiance, perfect for cozy evenings or quiet moments of relaxation.
Transition seamlessly from the dining area into the functional kitchen that boasts quartz counters, stainless steel appliances, and open shelving to showcase culinary delights. French doors lead to the fenced backyard oasis, offering a peaceful retreat amidst the bustling city that surrounds. Completing the main level is a versatile office or guest space, along with a European-style half bath & laundry room. Upstairs, across the breezeway sits two bedrooms and a full bathroom. The back bedroom opens westward to a private deck and a gorgeous sunset glow while the east bedroom offers urban peek-a-boo views.
Additional and flexible storage space is available in the basement, including a bonus unfinished studio room and coveted attached garage. Convenient access to South Waterfront, OHSU, Under Armour, Lair Hill Park, downtown, freeways and amenities - exploring from your doorstep has never been easier. Top-rated schools add to the appeal of this exceptional property. Don’t miss this rare opportunity to own a piece of history.

